Home
About Us
Projects
Media
News
Contact
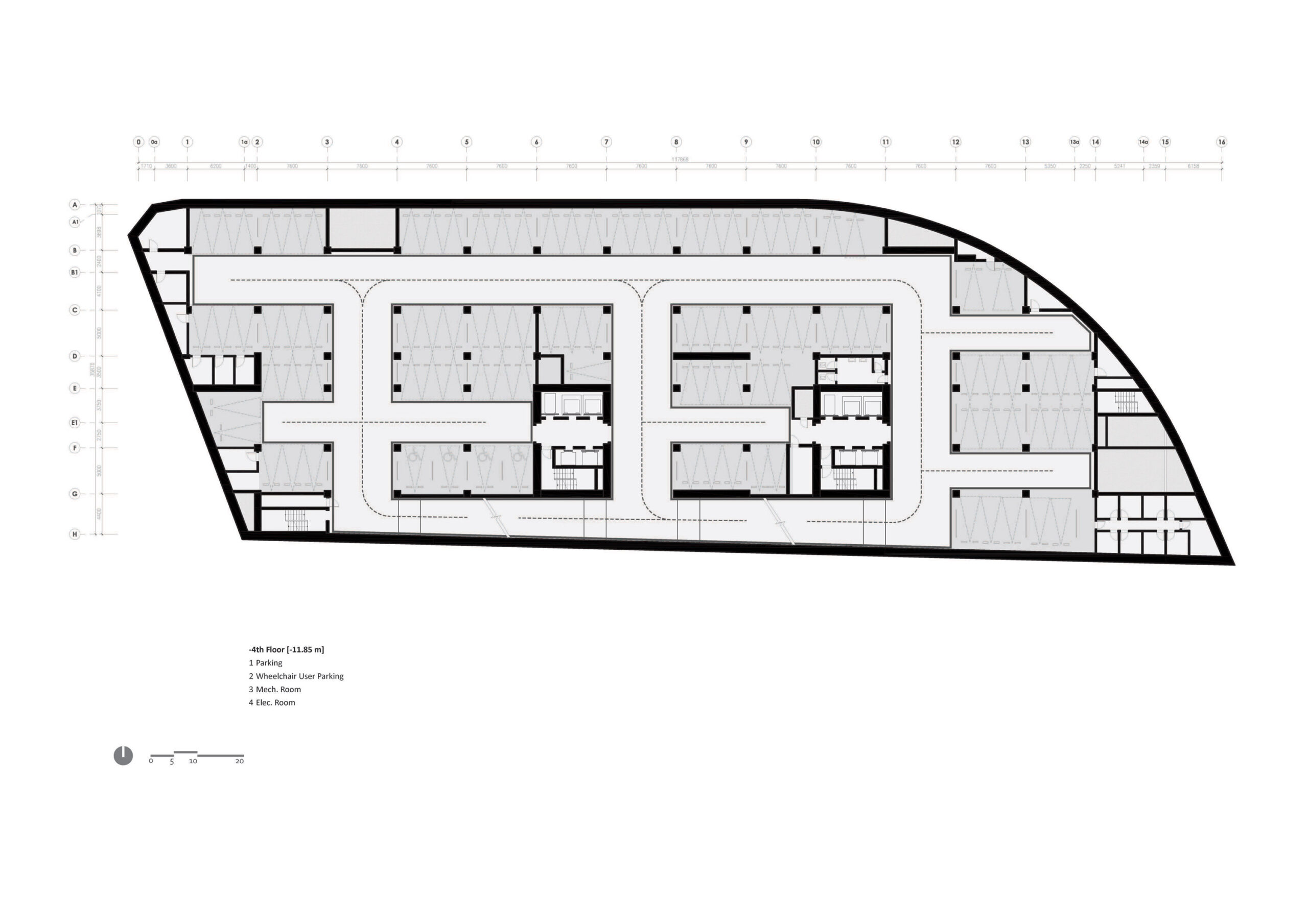
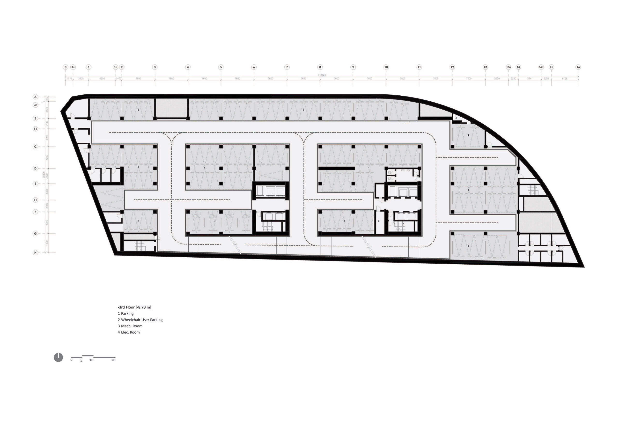
Jaam Tower
City : Tehran
Year : 2009 - 2016
Area : 62500 sqm
Program : Mixed-use
Status : Completed
Client : Bank Melat
Jaam Tower